|
|
設計事務所が作製する図面をご存知でしょうか?ここでは設計事務所の業務の一つである設計図作製について紹介します。
下段図面は一軒の木造2階建て住宅(約125m2)の建築に際し作製したものです。(伊豆高原の別荘)図面はいくつかの作業段階に応じて作製されます。 |
第1段階 企画提案図 「コントロールキーを押しながら+キー」(macはコントロールキーを押しながら+キー)で画面全体が拡大します
|
建て主さんとお会いし、敷地調査を行ったうえで、ご相談や要望、さまざまな条件をもとに構想を練ります。企画提案図には打ち立てたコンセプトに添って描かれたラフな構想をあらわします。 企画図は構想やコンセプトなどの設計意図を最もシンプルに表し、いくつかの設計段階のなかで最も重要な部分です。 設計者は与条件に添って計画をまとめますが、敷地に落とし込まれた案を見て打ち合わせすると、あらためて必要な要件やさほど重要ではなかったものに気づくことがあります。
企画図は住まい像や暮らしのイメージを整理してゆくため検討を重ね案を練る作業です。提案図は作り込んだものではなく、気軽にご意見頂けます。 打ち合わせに応じて代替案や見直し案を検討し、スケッチパースやラフな模型をつくりながらイメージをまとめていきます。
|
|

提案1(平面) |
提案1(立断面) |
提案2 |
提案3 |
提案4 |

提案5 |
|

提案6 |
|
|
|
|

空間の比較(2階) |
|

空間の比較(玄関ホール) |

空間の比較(2階ホール) |

空間の比較(2階居間) |

空間の比較(2階居間) |

空間の比較(2階居間) |

空間の比較(2階浴室) |
第2段階 基本設計図 「コントロールキーを押しながら+キー」(macはコントロールキーを押しながら+キー)で画面全体が拡大します
|
基本設計図とは前段のスケッチ・イメージパース・模型等でスタディした内容を具体的にまとめ1/100程度の縮尺で表現したものです。規模や仕様の概要が示され、工事費略概算ができる図面で、着工の許可を得るため役所に申請する図面(確認申請図書)までを含みます。別の言い方をすると工事をするために最低限必要な図面と考えられますが、細部が読みとれないため、工事費見積もり明細の根拠図とはなり得ません。この段階で工事契約、着工と進んでしまうことで、工事中に施工者・建築主・設計者三者の思い違い等トラブルのもとになることがあるようです。細部を表現する図面としては、次の段階の実施設計図が必要です。 成果品としての順番で示したので、実施設計の前段階のような説明ですが、実際の設計事務所の業務では基本・実施両設計検討は同時に始まり並行して進み、ほぼ同時期に終了するのが普通です。 |
|

建築概要・案内図 |

配置図・面積表 |

平面図 |

立断面図 |

基礎・床・小屋伏図 |

基礎断面・配筋図 |
|

基本設計イメージパース1 |
基本設計イメージパース2 |
基本設計イメージパース3 |
基本設計イメージパース4 |
基本設計イメージパース5 |
|
第3段階 実施設計図 「コントロールキーを押しながら+キー」(macはコントロールキーを押しながら+キー)で画面全体が拡大します
|
実施設計図は前段の基本設計図では表すことの出来ない細部について、部位に応じて縮尺を1/50〜1/10まで拡大して表現する図面です。より詳細で具体的に設計意図を伝えるため、原寸や文言で明確にすることもあります。床・壁・天井などのあらゆる面が詳細に表され、具体的な位置関係・寸法はもちろん、扉につくツマミや丁番一つまで数量や仕様が表されます。また、仕上げや構造などの様々な部材の相互関係が断面に表されます。そのようにして施工者との工事契約のもとの図面となり、見積もり明細の根拠となります。契約やその後の工事を正確・スムーズに行うため設計事務所としての重要な業務となります。建て主さんにとってはわかりにくい図面もあるので、スケッチパースなどでも表現して空間イメージを共有していきます。 |
|

仕上表 |
1階平面詳細図 |
2階平面詳細図 |

南立面図 |

西立面図 |

北立面図 |
|

東立面図 |
矩計図 |
1階天井伏図 |
2階天井伏図 |
展開図1 |

展開図2 |
|

展開図3 |
展開図4 |

展開図5 |

展開図6 |
展開図7 |
展開図8 |
|

展開図9 |

展開図10 |

展開図111 |

展開図12 |

展開図13 |
展開図14 |
|

展開図15 |
建具表1 |

建具表2 |
建具表3 |
1階枠詳細図 |
2階枠詳細図 |
|

キッチン詳細図 |

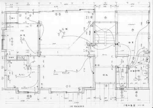
1階電気配置図 |

2階電気配置図 |

1階給排水衛生設備図 |
2階給排水衛生設備図 |

屋外設備図 |
|

設備機器リスト |
断面詳細図1(玄関庇) |

断面詳細図2(玄関ホール) |

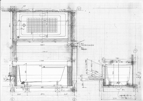
断面詳細図3(2階ハ゛ルコニー浴室) |

特別詳細図1(在来浴室) |

特別詳細図2(浴室タイル割付) |
平面を確認するスケッチパース 「コントロールキーを押しながら+キー」(macはコントロールキーを押しながら+キー)で画面全体が拡大します
|
|
|
|
|
|
|
|

南外観 |
西外観 |
北外観 |

東外観 |

階段室北側 |

玄関・ホール・階段室 |
|

ゲストルーム1 |
ゲストルーム2 |

ゲストルーム3 |

ゲストルーム4 |

ゲストルーム5 |

ゲストルーム6 |
|

ゲストルーム7 |
リビングダイニング1 |

リビングダイニング2 |

リビングダイニング3 |
リビングダイニング4 |
リビングダイニング5 |
|

リビングダイニング6 |

リビングダイニング7 |

キッチン・和室・広縁1 |

キッチン・和室・広縁2 |

キッチン・和室・広縁3 |

キッチン1 |
|

キッチン2 |

和室1 |

和室2 |

ハ゛ルコニー・浴室・洗面脱衣室1 |

ハ゛ルコニー・浴室・洗面脱衣室2 |

浴室1 |
|

浴室2 |

洗面脱衣室 |

主寝室1 |

主寝室2 |

主寝室3 |

主寝室4 |

主寝室5 |
第4段階 現場指示図 「コントロールキーを押しながら+キー」(macはコントロールキーを押しながら+キー)で画面全体が拡大します
|
現場施工図や原寸加工図は本来は工事を請け負った施工者が、実施設計をふまえて施工するために、現場の進行を管理する中、各職方と打ち合わせと調整をしながら製作するものです。図面は設計監理者の承認を受けたのち施工にかかります。当事務所ではこれらの図面を工事監理業務の中で状況に応じて、現場指示図として作図しています。 |
|
 |

|

|
|
|
|
|
 |

|
 |
|
|
|
|
 |

|
|
|

|

|
|
 |
|
|
|
|
|
|
 |

|
|

|

|

|
|
 |
|

|

|

|
|
|